Engineering & Simulation

AutoRebar -v3.2.2 x64 (Latest Software)

AutoRebar -v3.2.2

Setup File Download

AutoRebar -v3.2.2 x64 (Latest Software)

Introduction:

AutoRebar -v3.2.2 x64 (Latest Software). AutoRebar v3.2.2 is a unique and advanced software solution in the field of construction and architecture. Due to the demand in today’s market for an accurate and time-saving rebar detailing process, AutoRebar brings out an excellent tool that simplifies the whole design and construction process related to reinforced concrete.

AutoRebar -v3.2.2 x64 (Latest Software)
AutoRebar -v3.2.2 x64 (Latest Software)

Considering day-to-day increasing utility, AutoCAD users can use this software for the automation of creating, managing, and modifying rebar details in any construction project. Whether you’re a civil engineer, architect, or construction professional, AutoRebar simplifies and optimizes your workflow.

Description:

AutoRebar v3.2.2 is a very powerful yet easy-to-use add-on application fully integratable with AutoCAD, which enables automated rebar detailing. It represents a wide range of features whereby users can draw, manipulate, and manage reinforcement bar design in their work so much more easily. In particular, it becomes very useful when the user has to make detailed and accurate drawings regarding the reinforcement planning of concrete structures-something quite annoying and error-prone when made by hand.

With its intuitive interface and advanced features, AutoRebar v3.2.2 saves valuable time for professionals by automating repetitive tasks, thereby reducing human error. Be it a simple slab design or an intricate structure, this software is designed to cater to small-scale projects as well as large-scale constructions. It also supports a wide variety of rebar shapes and sizes, making it versatile in the types of construction projects it can be employed for.

You may also like: Autokroma Bundle 2024.8 (x64) [Latest Software]

Overview:

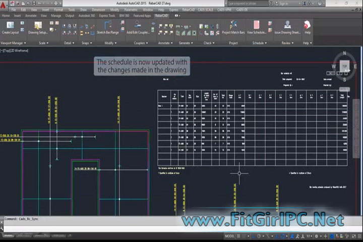
AutoRebar v3.2.2 x64 was made to work in the structure of AutoCAD to enable users to create and modify rebar details without manual drafting. You can immediately create a rebar layout including bending shapes, bar numbering, and dimensioning in compliance with international standards.

The main features of AutoRebar v3.2.2 are automatic rebar detailing, dynamic bar distribution, and user templates. It supports all international standards and codes for the widest range of regions.AutoRebar -v3.2.2 x64 PC Software

Software Features:

Automated Rebar Detailing: AutoRebar eliminates the need for manually drawing rebar layouts. 

Comprehensive variety of bar shapes: AutoRebar will provide the ability to have a wide range of rebar shapes, such as but not limited to, straight bars, bent bars, and hooks.

Dynamic bar distribution: The software allow the user to distribute the bars within the structure dynamically for optimal reinforcement distribution.

Automatic bar numbering: Thus, the identification and organization of reinforcement for every part of the structure will be much easier.

Rebar Assembly and Custom Templates: The system allows you to create your own templates that will save you plenty of time if some detailing tasks are repetitive. You can also assemble multiple rebar parts into one block; this will keep your drawing tidy and more manageable.

You may also like: Atlantis Word Processor 4.4.1.3 (x64) [Latest Software]

International Code Compliance: This makes it an essential tool when dealing with international construction projects.

User-Friendly Interface: With its advanced functionality, AutoRebar is endowed with an intuitive, easy-to-use interface that enables users to become familiar with the software right away in order to learn its use and integrate it into their workflow.

AutoRebar -v3.2.2 x64 Free Download

Advanced 3D Rebar Modeling: It also provides the functionality to model rebar in 3D for clear visualization of how the reinforcement fits within the structure.

Detailed Reports and Bill of Materials: AutoRebar provides a detailed report and material list that will save time in maintaining estimated costs with materials needed in your project.

Installation of AutoRebar v3.2.2:

Software Download: Download the AutoRebar v3.2.2 installation package from a trusted download link or from the official website.

Prepare for AutoCAD: Make sure AutoCAD is installed at your system because this AutoRebar v3.2.2 works as an add-on to AutoCAD.

Follow the Installer: Double-click on the installer that you downloaded to run it. It will bring up a setup wizard that will walk you through steps involved in installing. Follow the on-screen instructions to complete the installation.

You may also like: Auslogics Driver Updater 2.0.1 (x64) [Latest Software]

Software Activation: After it is installed, you will need to activate the software. Use the license key that was given to you at purchase time to activate AutoRebar. Restart AutoCAD: After installing, open AutoCAD again.

Now you should be able to use AutoRebar as a plugin in AutoCAD.

Getting Started with AutoRebar: Fire up AutoCAD and select the AutoRebar toolbar to start working in AutoRebar.

AutoRebar -v3.2.2 x64 Latest Software

System Requirements:

You must have had the following basic system requirement to run AutoRebar v3.2.2 smoothly:

  • Operating System: Windows 10, 64-bit or above
  • Processor: Intel Core i5 or Equivalent
  • RAM: at least 8 GB disk
  • space: 1 GB free hard disk space for installation
  • Graphics: Compatible with hardware requirements set by AutoCAD
  • AutoCAD: AutoCAD 2020 or later
  • Internet Connection: Required for activation and updates
>>> Get Software Link…

Download Now

Your File Password : 123
File Version & Size : 3.2.2 | 17 MB
File type : compressed / Zip & RAR (Use 7zip or WINRAR to unzip File)
Support OS : All Windows (32-64Bit)
Virus Status : 100% Safe Scanned By Avast Antivirus

Setup File Download

Leave a Reply

Your email address will not be published. Required fields are marked *

Back to top button